施工事例

中古平屋物件リフレッシュ改装工事
大崎市/
N様邸 3人家族/
築30年
| 工事名 | 全面改装 |
|---|---|
| 工事期間 | 60日間 |
| 施工年月日 | R7.6 |
| 建物タイプ | 戸建 |
| 工事費用 | 1300万円前後 |
| 担当店舗 | 古川店 |
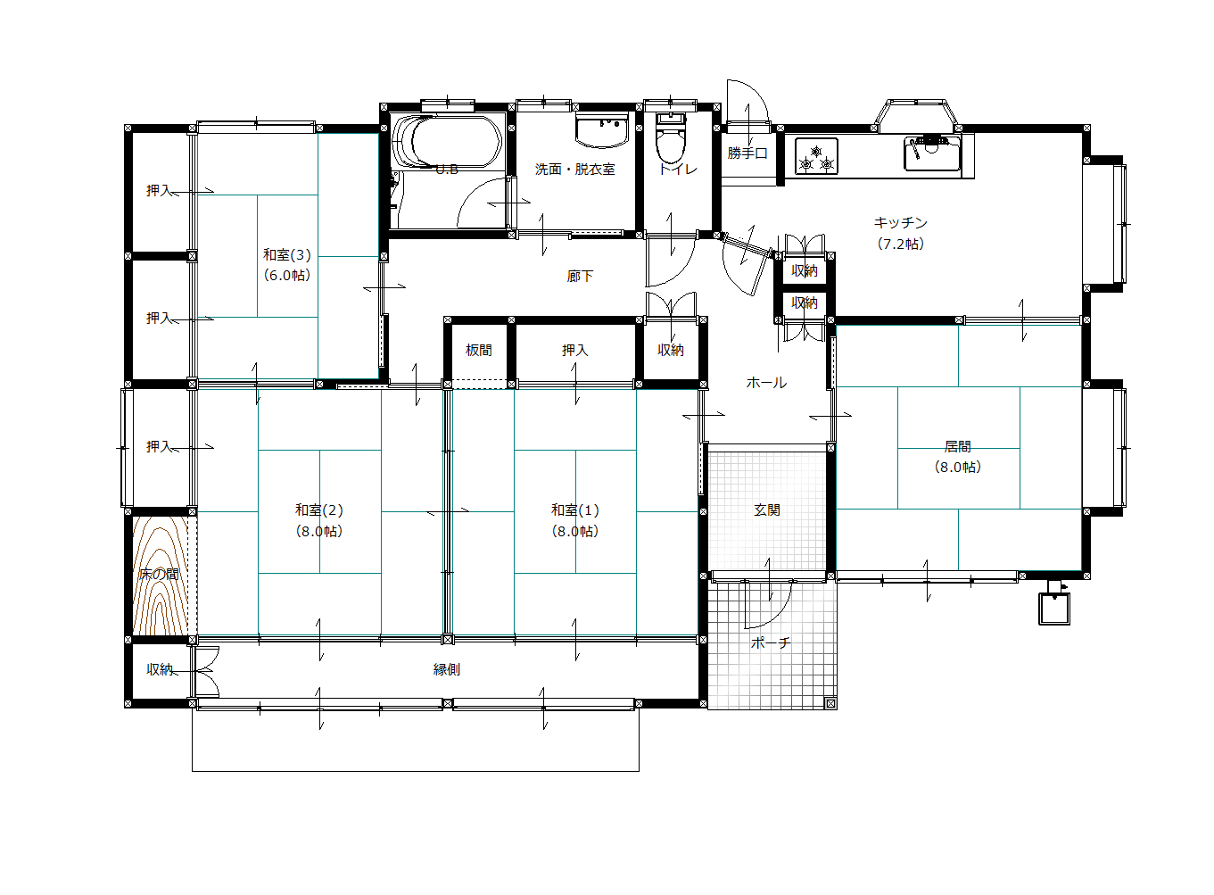
| 工事場所 | 中古住宅リノベーションキッチントイレ浴室・洗面和室・洋室屋根・外壁増築・全面改装玄関窓内装 |

中古平屋物件リフレッシュ改装工事
大崎市/
N様邸 3人家族/
築30年
| 工事名 | 全面改装 |
|---|---|
| 工事期間 | 60日間 |
| 施工年月日 | R7.6 |
| 建物タイプ | 戸建 |
| 工事費用 | 1300万円前後 |
| 担当店舗 | 古川店 |
| 工事場所 | 中古住宅リノベーションキッチントイレ浴室・洗面和室・洋室屋根・外壁増築・全面改装玄関窓内装 |