使わなくなった和室をプライベートサロンに 加美町H様邸 #96 | リフォームのたかかつ|大崎市・一関市・登米市のリノベーション専門店

施工事例

使わなくなった和室をプライベートサロンに

加美町/

H様邸 1世帯2人家族/

築40年

工事名 和室改装・増築
工事期間 60日間
施工年月日 R7.2
建物タイプ 戸建
工事費用 万円前後
担当店舗 古川店
工事場所 和室・洋室屋根・外壁増築・全面改装玄関内装断熱

BEFORE

AFTER

BEFORE

AFTER

BEFORE

AFTER

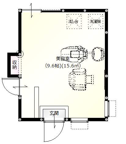
DRAWING

BEFORE

AFTER

お客様のご希望

使わなくなった和室を美容室に改装したい。

リフォームポイント

使わなくなった和室を改装・増築をして、プライベートサロンに生まれ変わりました。壁紙や照明、スイッチプレートにもこだわっていて素敵な空間になりました。