施工事例

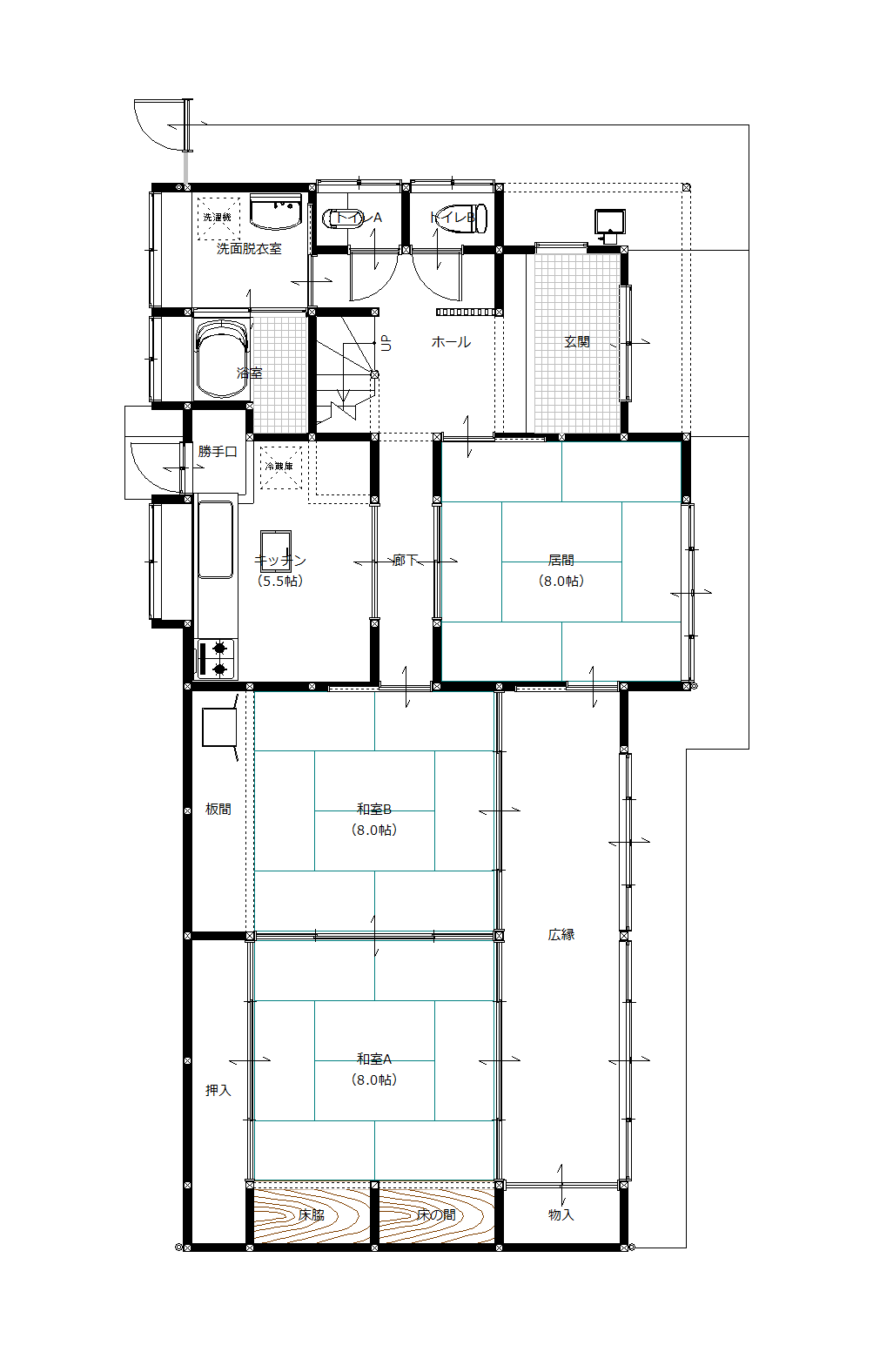
間取り変更で光と風が入るリビングへ。将来の暮らしを考えた安心リフォーム。
大崎市/
O様邸 1世帯2人家族/
築45年
| 工事名 | 改装工事 |
|---|---|
| 工事期間 | 75日間 |
| 施工年月日 | R7.7 |
| 建物タイプ | 戸建 |
| 工事費用 | 1900万円前後 |
| 担当店舗 | 古川店 |
| 工事場所 | LDKキッチントイレ浴室・洗面和室・洋室屋根・外壁ダイニングリビング玄関窓内装断熱介護・バリアフリーリノベーション |

間取り変更で光と風が入るリビングへ。将来の暮らしを考えた安心リフォーム。
大崎市/
O様邸 1世帯2人家族/
築45年
| 工事名 | 改装工事 |
|---|---|
| 工事期間 | 75日間 |
| 施工年月日 | R7.7 |
| 建物タイプ | 戸建 |
| 工事費用 | 1900万円前後 |
| 担当店舗 | 古川店 |
| 工事場所 | LDKキッチントイレ浴室・洗面和室・洋室屋根・外壁ダイニングリビング玄関窓内装断熱介護・バリアフリーリノベーション |